粉體行業在線展覽
標準檢驗篩
面議
先鋒
標準檢驗篩
1247
標準檢驗篩特點
★整機外觀設計精巧,繼電器線路排列合理穩固;
★整體篩機重量輕、外形體積小、方便放置與移動使用;
★檢驗工序中篩分精度準、篩分效率高,可篩分至0.025-3mm;
★分析篩分工序中整機噪音小,用實踐來檢驗產品;
★300J標準檢驗篩箱體、振動盤采用SUS304不銹鋼材質精制而成;
★檢驗篩分時間通過正泰時間繼電器做控制,準確的把檢驗時間控制在一秒不差;
★產品通過納米技術改革,特意在檢驗篩底部加裝四個高彈性橡膠彈簧,巧妙有力的減去了整機在辦公臺上的顫動;
★檢驗篩篩框采用SUS304(0Cr18ni9)不銹鋼拉伸拋光而成,壁厚0.6毫米,表面光澤均勻一致,整體成型堅固耐用,不存在絲毫磁性, 標準篩篩網與標準篩篩框通過錫焊成型固定、不會產生松弛晃動,能耐300度以下高溫。
標準檢驗篩工作原理
標準檢驗篩由超聲波振動電源、XF-300檢驗篩(主機)、J200型檢驗篩框,高頻連接線、連接器組成。超聲波振動電源產生的高頻電振蕩由振蕩器轉換成高頻正弦形式的振蕩波,振蕩器將振蕩波均勻傳輸至篩面。篩網上的物料在做低頻三次元振動的同時,疊加上超聲波振動,既可防止網孔堵塞,又可提高篩分產量和質量。


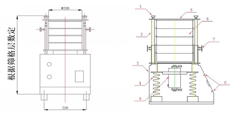
備注:1、圓手柄 2、立桿 3、殼體 4、彈簧 5、蓋板 6、篩具 7、緊定手柄 8、指示面板 9、振動電機
標準檢驗篩技術參數
| 序號 | 名稱 | 單位 | 參數 |
| 1 | 篩框 | 層 | 1~8 |
| 2 | 篩框直徑 | mm | ∮200∮100∮75 |
| 3 | 篩分粒度 | mm | 0.28~3 |
| 4 | 噪音 | dB | 50 |
| 5 | 振幅 | mm | 0~3 |
| 6 | 振動頻率 | 次/分 | 3000 6000 |
| 7 | 振動方式 | 種 | 3 |
| 8 | 電源 | V:HZ | 220:50 |
| 9 | 正*重量 | KG | 21 |