粉體行業在線展覽
ZSW 振動喂料機
面議
上海新山寶
ZSW 振動喂料機
1991
產品描述:
本公司生產給料機系列是直線振動式給料機,采用激振器的方式,具有振動平穩、工作可靠、壽命長等特點,可為破碎機械連續、均勻喂料,促進破碎機械產能提高及連續工作能力,并對物料具有粗篩分能力。通常應用在顎式破碎機的喂料。廣泛適用于選礦、建材、水利、化學工業等領域的破碎篩分聯合設備中。例如向破碎、選煤、篩分、運輸、包裝機械等給料、配料等。
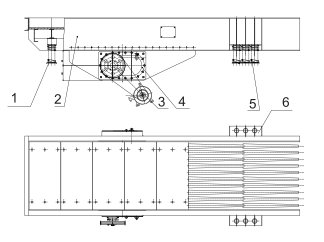
主要部件名稱:
1.后彈簧支架 2.機架 3.電機 4.振動器 5.彈簧 6.前彈簧支架

產品特點:
◎具有粗篩分能力
◎連續均勻喂料
◎物料流動性良好,不堵塞
◎安裝,維修方便
