粉體行業在線展覽
FJ系列氣流分級機1
面議
富森礦山
FJ系列氣流分級機1
1584
次進風及立式安裝的大葉輪轉子的強制型分級機。工作時物料在引風機引力的作用下由下筒身進入,外界一次風與物料充分混合,使粒子得以充分分散,并上升至分級區,由于分級葉輪轉子的高速旋轉,粒子即受到分級葉輪旋轉產生的離心力,又受到引風機引力產生的向心力,當粒子受到的離心力大于向心力,分級徑以上的粗粒子被甩到筒體內壁失速沿壁面下滑,外界二次風通過均勻分布在錐體上的進風口進入,對粗粒子進行產生風篩作用將混雜或粘附于粗料中的細粉分離于凈,分離后的粗料由卸料裝置收集排出分級機,分級徑以下的細粉隨氣固二相流進入旋風收集器、脈沖除塵器被收集下來,凈化后的氣體由引風機排出。
主要特點:
1、分級機結構進行了特殊設計,幾乎截止所有大顆粒,分級精度高、大顆粒控制嚴。
2、分級點通過分級葉輪轉速和引風機風量自由調整,以取得所需產品,分級范圍廣。
3、采用低轉速立式單葉輪分級結構,物料流場穩定,設備處理量大,分級效率高。
4、可采用多級串聯結構,可同時分級出幾個粒度段的產品,獲得理想的粒度分布。
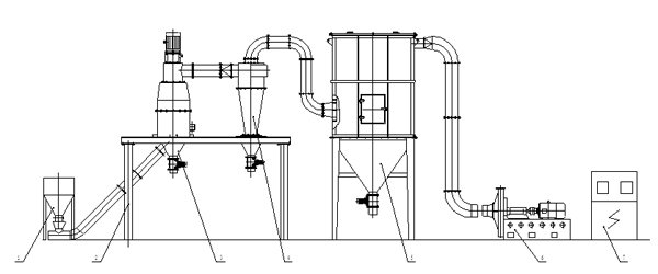
工藝流程圖:



1、料倉 2、操作平臺 3、分級機 4、旋風收集器
5、脈沖除塵器 6、高壓引風機 7、電控柜
規格參數:
規格型號 | 處理量(kg) | 分級效率(%) | 產品粒度(um) | 配套功率(kw) |
FJ350 | 500~1000 |
70~90
|
D97=5~45 | 30 |
FJ400 | 800~2500 | 50 | ||
FJ450 | 2000~4000 | 75 | ||
FJ550 | 4000~7800 | 112 | ||
FJ650 | 6500~12000 | 140 | ||
FJ800 | 8000~17000 | 169 | ||
FJ900 | 10000~22000 | 205 | ||
FJ1000 | 13000~26000 | 240 |